WX:grove_company
| |||||||||||||||||||||||||||||
|
功率kw |
带速m/s |
最小筒宽B・min mm |
最大筒宽 B・max mm |
滚筒重量Kg | |
|
最小筒宽 |
每增加100mm | ||||
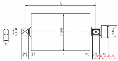
|
11 |
1.00 1.25 |
950 |
1600 |
780 |
32 |
|
15 |
1.00 1.25 1.60 | ||||
|
18.5 |
1.00 1.25 1.60 2.00 2.50 | ||||
|
22 |
1.25 1.60 2.00 2.50 3.20 4.00 | ||||
|
30 |
1.60 2.00 2.50 3.20 4.00 | ||||
|
37 |
2.00 2.50 3.20 4.00 | ||||
|
45 |
2.50 3.20 4.00 |
1000 |
1800 | ||
gelufu.com.cn
Mobile:13331225020
|
功率kw |
带速m/s |
最小筒宽B・min mm |
最大筒宽 B・max mm |
滚筒重量Kg | |
|
最小筒宽 |
每增加100mm | ||||
|
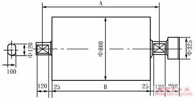
55 |
1.25 1.60 2.00 2.50 |
1200 |
1800 |
1600 |
40 |
|
3.20 4.00 4.25 |
1150 | ||||
|
75 |
1.25 1.60 2.00 2.50 3.20 4.00 4.25 |
1200 |
1800 | ||
www.gelufu.com.cn
|
功率kw |
带速m/s |
最小筒宽B・min mm |
最大筒宽 B・max mm |
滚筒重量Kg | |
|
|
|
|
|
最小筒宽 |
每增加100mm |
|
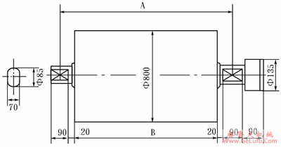
75 |
1.60 2.00 2.50 3.20 4.00 |
1200 |
1800 |
1650 |
60 |
|
90 |
2.00 2.50 3.20 4.00 | ||||

|
功率kw |
带速m/s |
最小筒宽B・min mm |
最大筒宽 B・max mm |
滚筒重量Kg | |
|
最小筒宽 |
每增加100mm | ||||
|
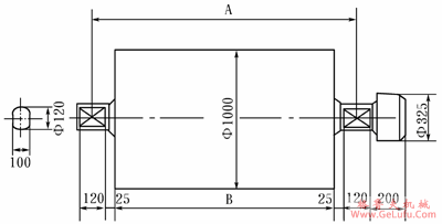
90 |
1.25 1.60 |
1400 |
1800 |
1800 |
50 |
|
110 |
1.60 2.00 2.50 3.20 |
1600 |
1800 | ||