gelufu.com
|
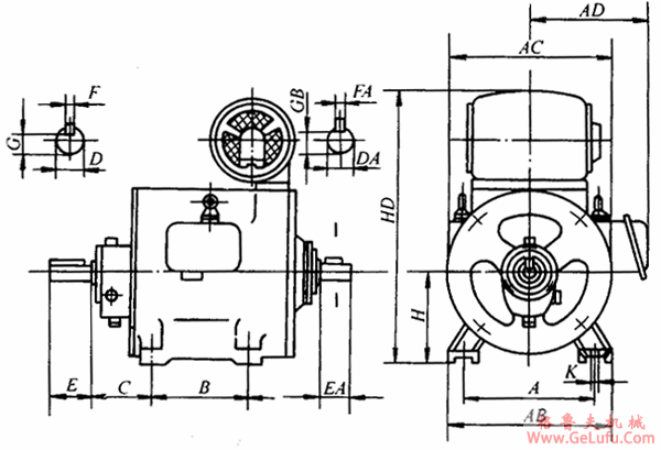
中心高 |
A |
B |
C |
D |
E |
EA |
F |
FA |
G |
GB |
H |
K |
AB |
AC |
AD |
HD |
|
200M |
318 |
267 |
133 |
42 |
110 |
12 |
37 |
200 |
ф19 |
400 |
400 |
320 |
720 | |||
|
200L |
305 | |||||||||||||||
|
225M |
356 |
311 |
149 |
55 |
16 |
49 |
225 |
450 |
450 |
360 |
760 | |||||
|
225L |
356 | |||||||||||||||
|
250M |
406 |
349 |
168 |
65 |
140 |
18 |
58 |
250 |
ф24 |
500 |
500 |
410 |
820 | |||
|
250L |
406 | |||||||||||||||

|
中心高 |
凸缘号 |
D |
DA |
E |
EA |
F |
FA |
G |
GB |
M |
N |
P |
R |
T |
S |
凸缘孔数 |
AC |
AD |
HF |
|
200M
200L |
FF400 |
42 |
110 |
12 |
37 |
400 |
350±0.018 |
450 |
45 |
5 |
19 |
8 |
400 |
320 |
520 | ||||
|
225M
225L |
FF500 |
55 |
110 |
16 |
49 |
500 |
450±0.020 |
500 |
45 |
5 |
19 |
8 |
450 |
360 |
560 | ||||
|
250M
250L |
FF500 |
65 |
140 |
18 |
58 |
600 |
550±0.022 |
550 |
55 |
6 |
24 |
8 |
500 |
410 |
600 | ||||
gelufu.com