格鲁夫齿轮箱
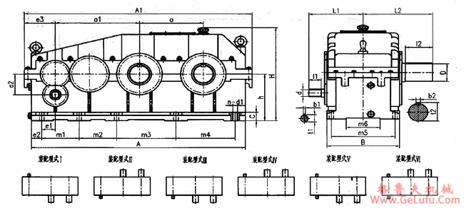
开炼机齿轮箱外形尺寸及装配形式 mail:china@gelufu.com
格鲁夫减速机
| 型号 | a | a1 | a2 | A | A1 | B | H | h | n | d1 | C | e1 | e2 | e3 | m6 |
| SK560 | 560 | 740 | 200 | 1880 | 2000 | 640 | 896 | 450 | 10 | 40 | 80 | 120 | 90 | 270 | 300 |
| SK610 | 610 | 765 | 224 | 2110 | 2110 | 690 | 996 | 480 | 10 | 40 | 60 | 125 | 160 | 285 | 300 |
| SK660 | 660 | 855 | 250 | 2365 | 2365 | 670 | 1016 | 470 | 10 | 40 | 50 | 150 | 200 | 350 | 300 |
| SK762 | 762 | 875 | 260 | 2440 | 2600 | 850 | 1200 | 560 | 10 | 46 | 35 | 228 | 75 | 383 | 424 |
| XK665 | 665 | 1110 | 320 | 2580 | 2700 | 880 | 1270 | 650 | 10 | 46 | 80 | 195 | 155 | 410 | 560 |
WX:grove_company
| 型号 | d(m6) | b1 | t1 | l1 | L1 | D(m6) | b2 | t2 | l2 | L2 | m1 | m2 | m3 | m4 | m4 |
| SK560 | 65 | 18 | 69 | 110 | 480 | 170 | 40 | 179 | 240 | 610 | 330 | 330 | 520 | 520 | 560 |
| SK610 | 75 | 20 | 79.5 | 130 | 530 | 170 | 40 | 179 | 240 | 640 | 340 | 340 | 540 | 540 | 610 |
| SK660 | 75 | 20 | 79.5 | 130 | 530 | 170 | 40 | 179 | 240 | 640 | 330 | 400 | 585 | 600 | 610 |
| SK762 | 85 | 22 | 90 | 180 | 655 | 200 | 45 | 210 | 280 | 755 | 450 | 365 | 670 | 745 | 725 |
| XK665 | 110 | 28 | 116 | 165 | 650 | 260h6 | 56 | 272 | 340 | 840 | 420 | 550 | 700 | 600 | 780 |
格鲁夫齿轮箱