您好,欢迎进入格鲁夫机械设备制造有限公司官网!
减速机|丝杆升降机|减速电机|行业专用减速机|减速机配件|减速机厂|丝杆升降机厂|转向器厂

联系我们

邮箱:china@gelufu.com
电话:0312-6784766
在线咨询

联轴器

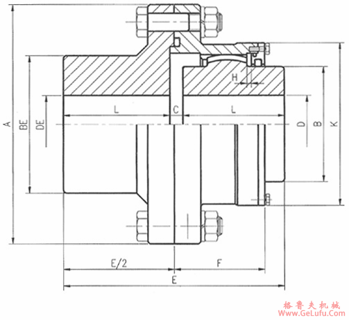
DY-CB型单面啮合联轴机外形及安装尺寸

发布日期:2023-12-28 20:05 浏览次数:

DY-CB型单面啮合联轴机外形及安装尺寸(图1) gelufu.com

QQ:20275456

单面啮合联轴器

只可容许角度之偏差。主要用途是和浮动轴配合使用,又适用于从动轴设备,只有一处径向轴承支持者之连结。 格鲁夫减速机

DY-CB型单面啮合联轴机外形及安装尺寸(图2) Mobile:13331225020

DY-CB

型号
扭力
kg-M
最高回转数
RPM
最大孔径
mm
最小孔径
mm
重量
kg
润滑油
重量
g
尺 寸 mm
挠性
刚性
L
C
E
A
B
F
K
H
BE
250
15.3
1650
250
250
165
310
2300
224
22
470
462
330
148
422
6
390
285
22.4
1500
285
285
190
485
3500
250
22
522
530
380
158
470
6
435
320
31.8
1200
320
320
215
695
4300
280
28
588
590
430
177
522
8
490
365
48
1200
365
365
245
1080
6400
315
28
658
650
490
182
582
8
550
400
67
1050
400
400
270
1580
9000
355
28
738
738
540
215
658
8
625

格鲁夫丝杆升降机

格鲁夫丝杆升降机

QQ:47447450

Copyright © 2023-2025 格鲁夫 版权所有 备案号:冀ICP备19023093号-2

电子营业执照图标 电子营业执照
选择语言
Hello,欢迎来咨询~