您好,欢迎进入格鲁夫机械设备制造有限公司官网!
减速机|丝杆升降机|减速电机|行业专用减速机|减速机配件|减速机厂|丝杆升降机厂|转向器厂

联系我们

邮箱:china@gelufu.com
电话:0312-6784766
在线咨询

减速电机

G系列封闭式齿轮减速机特点

发布日期:2023-12-28 19:35 浏览次数:

G系列封闭式齿轮减速机特点(图1) gelufu

一、产品特点:
1、全封闭全寿命机电一体化设计 2、硬齿面斜齿传动,低噪声、高效率
3、整体结构紧凑、重量轻、适应性强 4、可附加电磁制动器
二、型号标记:
G系列封闭式齿轮减速机特点(图2)
注:箱体材料:L―铝合金、H―铸铁 安装型式:W―底脚式、F―法兰式
标志示例:
A GHWZ40-50
双轴铸铁箱体卧式,40机型号,减速比50
B GLF28-550-50
立式名合金箱体、28机型号、直联专用电机55W,减速比50。
C GLW28K-80B85-30
卧式铝合金箱体,28机型号,输入端IEC标准电机法兰80B5,减速比30
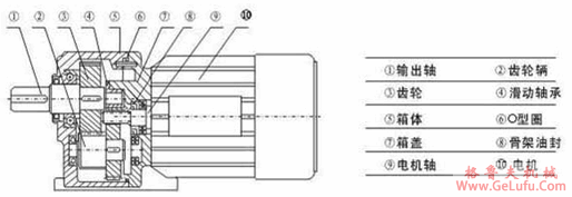
三、结构图例:
G系列封闭式齿轮减速机特点(图3)

Copyright © 2023-2025 格鲁夫 版权所有 备案号:冀ICP备19023093号-2

电子营业执照图标 电子营业执照
选择语言
Hello,欢迎来咨询~