Tel:0312-6784766

|
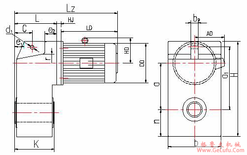
机座号 |
尺 寸 | |||||||||||||
|
a |
H |
a1 |
b |
b0 |
b1 |
c |
d1 |
d2 |
e1 |
e2 | ||||
|
QS/LG06 |
125 |
285 |
180 |
168 |
20 |
160 |
82 |
φ14 |
10 |
42 |
50 | |||
|
QS/LG 08 |
160 |
358 |
230 |
210 |
20 |
200 |
87.75 |
φ20 |
10 |
47.75 |
73.5 | |||
|
QSE08 |
171 |
368 |
241 | |||||||||||
|
QS/LG 10 |
200 |
452 |
297 |
274 |
25 |
250 |
98 |
φ22 |
12 |
53 |
84 | |||
|
QSE10 |
215 |
462 |
312 | |||||||||||
|
QS/LG 12 |
250 |
566 |
360 |
346 |
30 |
304 |
111.25 |
φ26 |
16 |
61.25 |
88 | |||
|
QSE12 |
272 |
582 |
382 | |||||||||||
|
QS/LG 16 |
315 |
705 |
440 |
400 |
40 |
340 |
120.75 |
φ34 |
16 |
65.75 |
100 | |||
|
QSE16 |
340 |
725 |
465 | |||||||||||
|
QS/LG 20 |
400 |
820 |
525 |
500 |
50 |
340 |
127.75 |
φ40 |
16 |
67.75 |
104 | |||
|
QSE20 |
430 |
880 |
585 | |||||||||||
|
QS/LG 25 |
500 |
1050 |
667 |
620 |
70 |
560 |
135.75 |
φ40 |
20 |
75.75 |
112 | |||
|
QSE25 |
540 |
1160 |
777 | |||||||||||
|
| ||||||||||||||
|
机座号 |
尺 寸 | |||||||||||||
|
L |
k |
n |
r |
DD |
AD |
HD |
LD |
HJ |
Lz |
质量
(kg) | ||||
|
QS/LG 06 |
185 |
161 |
80 |
29 |
由配套电机定 |
Lz=L+LH+LD
(尺寸LH见附表) |
35.2 | |||||||
|
QS/LG 08 |
235.75 |
188 |
96 |
40 |
55.4/118 | |||||||||
|
QSE08 |
90 |
105 | ||||||||||||
|
QS/LG 10 |
261 |
208 |
127 |
51 |
94.6/172 | |||||||||
|
QSE10 |
122 |
153.6 | ||||||||||||
|
QS/LG 12 |
307.5 |
255 |
160 |
55 |
169/278 | |||||||||
|
QSE12 |
154 |
256.8 | ||||||||||||
|
QS/LG 16 |
331.25 |
264 |
220 |
75 |
252/392 | |||||||||
|
QSE16 |
373 | |||||||||||||
|
QS/LG 20 |
385.25 |
318 |
250 |
80 |
384/694 | |||||||||
|
QSE20 |
493 | |||||||||||||
|
QS/LG 25 |
429.75 |
356.5 |
310 |
95 |
936/1245 | |||||||||
|
QSE25 |
985 | |||||||||||||
|
|
QS06 |
QS(E)/LG08 |
QS(E)/LG10 |
QS(E)/LG12 |
QS(E)/LG16 |
QS(E)/LG20 |
QS(E)/LG25 |
|
71 |
40 |
20 |
|
|
|
|
|
|
80 |
50 |
30 |
32 |
26 |
|
|
|
|
90 |
60 |
40 |
42 |
36 |
|
|
|
|
100 |
68 |
48 |
50 |
44 |
45 |
45 |
|
|
112 |
68 |
48 |
50 |
44 |
45 |
45 |
58 |
|
132 |
|
|
50 |
44 |
45 |
45 |
58 |
|
160 |
|
|
74 |
68 |
70 |
70 |
82 |
|
180 |
|
|
|
96 |
97 |
97 |
110 |
|
200 |
|
|
|
|
97 |
97 |
110 |
|
225 |
|
|
|
|
127 |
127 |
140 |