Tel:0312-6784766
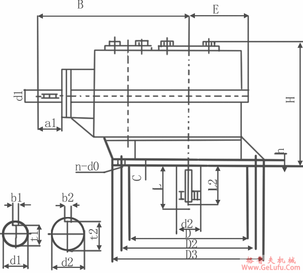
CF系列圆锥圆柱硬齿面齿轮减速机外形尺寸 手机:13331225020
传真:0312-6784733
格鲁夫机械
|
CF硬齿面齿轮减速机主要参数及安装尺寸 | ||||||||||||||||||
|
型号 |
d1 |
a1 |
b1 |
t1 |
d2 |
L1 |
L2 |
b2 |
t2 |
D1 |
D2 |
D3 |
C |
h |
1-d0 |
B |
H |
E |
|
CF180 |
40k6 |
80 |
12 |
35 |
65k6 |
130 |
110 |
18 |
58 |
320 |
360 |
400 |
6 |
22 |
8-18 |
580 |
450 |
250 |
|
CF212 |
45k6 |
90 |
14 |
39.5 |
80k6 |
145 |
130 |
22 |
71 |
380 |
430 |
480 |
8 |
25 |
8-22 |
650 |
480 |
270 |
|
CF250 |
50k6 |
100 |
14 |
44.5 |
95k6 |
170 |
150 |
25 |
86 |
455 |
520 |
580 |
8 |
30 |
12-22 |
760 |
510 |
300 |
|
CF300 |
60k6 |
120 |
18 |
53 |
110k6 |
200 |
200 |
25 |
100 |
530 |
590 |
640 |
10 |
30 |
12-22 |
830 |
540 |
330 |
|
CF355 |
65k6 |
130 |
18 |
58 |
120k6 |
225 |
220 |
32 |
109 |
640 |
720 |
780 |
10 |
45 |
12-27 |
960 |
600 |
370 |
|
CF400 |
70k6 |
140 |
20 |
62.5 |
140k6 |
255 |
230 |
36 |
128 |
700 |
760 |
820 |
12 |
40 |
12-27 |
1050 |
690 |
410 |
|
CF475 |
80k6 |
150 |
22 |
71 |
160k6 |
255 |
250 |
40 |
147 |
840 |
940 |
1010 |
12 |
42 |
16-30 |
1160 |
750 |
470 |
|
CF530 |
90k6 |
170 |
25 |
81 |
200k6 |
325 |
315 |
45 |
185 |
97 |
1080 |
1150 |
12 |
45 |
16-33 |
1250 |
830 |
520 |