您好,欢迎进入格鲁夫机械设备制造有限公司官网!
减速机|丝杆升降机|减速电机|行业专用减速机|减速机配件|减速机厂|丝杆升降机厂|转向器厂

联系我们

邮箱:china@gelufu.com
电话:0312-6784766
在线咨询

齿轮减速机

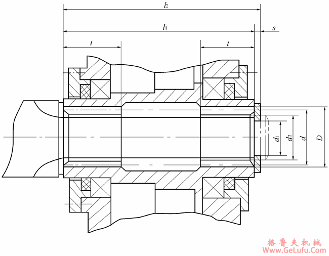
QS06、QS08、QS10、QS12、QS16、型起重机“三合一”运行机构用减速机的输出端尺寸(ZBJI19027)

发布日期:2023-12-28 18:52 浏览次数:

QS06、QS08、QS10、QS12、QS16、型起重机“三合一”运行机构用减速机的输出端尺寸(ZBJI19027)(图1)

电话:0312-6784766

QS型起重机“三合一”运行机构用减速器(ZBJI19027)的输出端尺寸 电话:0312-6784766

QS06、QS08、QS10、QS12、QS16、型起重机“三合一”运行机构用减速机的输出端尺寸(ZBJI19027)(图2) 格鲁夫配件

QS型减速器的输出端尺寸 (mm)

机座代号
花键副
内花键大径D
外花键大径d
d1
d2
l1
l2
S
t
06
INT/EXT21Z×2m×30P×6H/6h
GB/T3478.1-1995
45
44
37.5
40
161
162.5
1.5
50
08
INT/EXT24Z×2m×30P×6H/6h
GB/T3478.1-1995
51
50
39.5
42
138
189.5
1.5
55
10
INT/EXT31Z×2m×30P×6H/6h
GB/T3478.1-1995
65
64
59
62
208
210
2
60
12
INT/EXT27Z×3m×30P×6H/6h
GB/T3478.1-1995
85.5
84
78.5
82
255
257.5
2.5
65
16
INT/EXT35Z×3m×30P×6H/6h
GB/T3478.1-1995
109.5
108.0
96.5
100
264
266.5
2.5
75

Tel:0312-6784766

Copyright © 2023-2025 格鲁夫 版权所有 备案号:冀ICP备19023093号-2

电子营业执照图标 电子营业执照
选择语言
Hello,欢迎来咨询~