您好,欢迎进入格鲁夫机械设备制造有限公司官网!
减速机|丝杆升降机|减速电机|行业专用减速机|减速机配件|减速机厂|丝杆升降机厂|转向器厂

联系我们

邮箱:china@gelufu.com
电话:0312-6784766
在线咨询

行业专用减速机

PZH型座式圆盘给料机设备用途与结构简介

发布日期:2023-12-28 19:52 浏览次数:

PZH型座式圆盘给料机设备用途与结构简介(图1)

Tel:0312-6784766

设备用途与结构简介
适用范围
PZH型圆盘给料机是一种新型全封闭散装物料给配料成套设备,可将小块状、颗粒状和粉状等各种散状物从料仓、漏斗或其他储运装置转向输送至下道工序,特别适宜于冶金、矿山、建材、煤炭、电力、化工、机械等领域散状物的精确给料和配料。
性能特点
1、圆盘采用回转支撑结构,承载力大,运转平稳。
2、传动链由一台减速机和回转支撑齿轮副组成,系统简洁,传动效率高,使用寿命长。
3、减速机安装于回转支撑外侧,安装和检修维护十分方便。
4、机器采用自润滑,无需另加强制润滑设施,可靠性大大提高。
5、物料输送过程可封闭,有利于使用现场的高清洁度管理。
6、机器本体和落料套筒为模块化可拆分式结构,可实现使用现场快速拆装。
7、出料口安装位置角可在90°~180°范围内任意选择,应用更加得心应手。
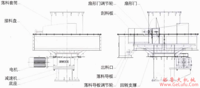
结构示意图
PZH型座式圆盘给料机设备用途与结构简介(图2)

Copyright © 2023-2025 格鲁夫 版权所有 备案号:冀ICP备19023093号-2

电子营业执照图标 电子营业执照
选择语言
Hello,欢迎来咨询~