传真:0312-6784733

|
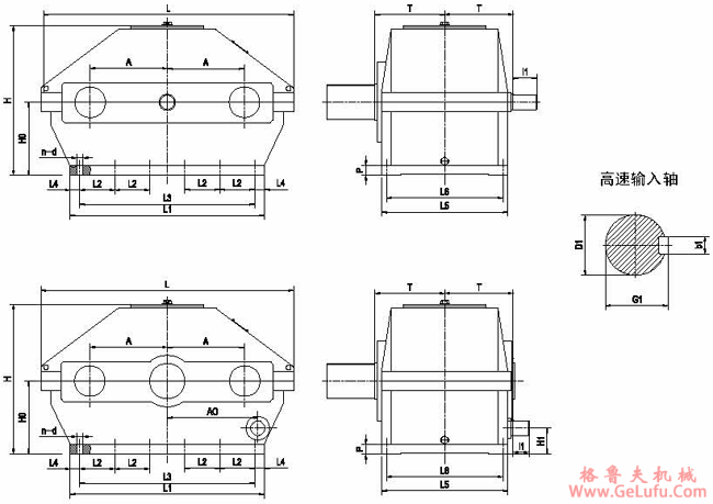
规
格 |
中心尺寸 |
轮廓尺寸 |
地脚螺栓 |
高速轴 |
质量(kg) | ||||||||||||||||
|
A |
H0 |
H1 |
H |
L |
L5 |
d |
n |
p |
L1 |
L2 |
L3 |
L4 |
L6 |
L1 |
B1 |
C1 |
D1 |
A0 |
T |
| |
|
100 |
100 |
100 |
100 |
200 |
350 |
220 |
14 |
6 |
18 |
300 |
130 |
260 |
20 |
180 |
42 |
8 |
31 |
28k6 |
125 |
120 |
95 |
|
125 |
125 |
125 |
125 |
250 |
420 |
280 |
14 |
8 |
20 |
400 |
180 |
360 |
20 |
240 |
58 |
10 |
35 |
32k6 |
165 |
150 |
175 |
|
140 |
140 |
140 |
90 |
270 |
600 |
320 |
18 |
12 |
24 |
600 |
135 |
540 |
30 |
260 |
58 |
10 |
41 |
38k6 |
265 |
170 |
250 |
|
170 |
170 |
170 |
100 |
330 |
720 |
350 |
24 |
12 |
28 |
700 |
155 |
620 |
40 |
270 |
82 |
12 |
45 |
42k6 |
300 |
185 |
420 |
|
235 |
235 |
235 |
130 |
470 |
820 |
400 |
24 |
12 |
30 |
800 |
180 |
720 |
40 |
320 |
82 |
14 |
51.5 |
48k6 |
350 |
210 |
630 |
|
280 |
280 |
280 |
150 |
560 |
900 |
460 |
26 |
14 |
32 |
860 |
152 |
760 |
50 |
360 |
82 |
16 |
59 |
55m6 |
380 |
240 |
820 |
|
335 |
335 |
335 |
180 |
670 |
1074 |
520 |
26 |
14 |
36 |
960 |
172 |
860 |
50 |
420 |
105 |
18 |
69 |
65m6 |
430 |
270 |
1025 |
|
400 |
400 |
400 |
200 |
800 |
1280 |
580 |
33 |
14 |
40 |
1070 |
190 |
950 |
60 |
460 |
105 |
20 |
74.5 |
70m6 |
480 |
300 |
1350 |
|
450 |
450 |
450 |
200 |
890 |
1400 |
630 |
33 |
16 |
45 |
1260 |
190 |
1140 |
60 |
510 |
105 |
20 |
79.5 |
75m8 |
580 |
325 |
1550 |
|
500 |
500 |
500 |
220 |
990 |
1500 |
680 |
33 |
16 |
50 |
1320 |
200 |
1200 |
60 |
560 |
130 |
22 |
85 |
80m6 |
600 |
350 |
2350 |
|
560 |
560 |
560 |
250 |
1030 |
1650 |
750 |
40 |
16 |
50 |
1420 |
210 |
1260 |
80 |
590 |
130 |
25 |
95 |
90m6 |
650 |
385 |
2600 |
|
630 |
630 |
630 |
300 |
1230 |
1800 |
820 |
40 |
16 |
60 |
1630 |
245 |
1470 |
80 |
660 |
165 |
28 |
106 |
100m6 |
750 |
420 |
4850 |
|
750 |
750 |
750 |
350 |
1330 |
2200 |
960 |
40 |
18 |
60 |
1850 |
240 |
1690 |
80 |
800 |
165 |
28 |
116 |
110m6 |
820 |
490 |
7500 |
|
800 |
800 |
800 |
350 |
1580 |
2400 |
1020 |
46 |
18 |
80 |
2020 |
260 |
1840 |
90 |
840 |
165 |
32 |
126 |
120m6 |
850 |
520 |
9500 |
|
900 |
900 |
900 |
400 |
1800 |
2600 |
1180 |
52 |
18 |
80 |
2200 |
290 |
2020 |
90 |
1000 |
200 |
32 |
137 |
130m6 |
1000 |
600 |
13000 |
|
1000 |
1000 |
1000 |
500 |
2000 |
2860 |
1240 |
52 |
20 |
80 |
2600 |
300 |
2410 |
90 |
1060 |
200 |
36 |
147 |
140m6 |
1200 |
635 |
19500 |