Mobile:13331225020

|
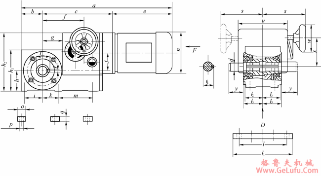
产品型号 |
外形及安装尺寸 | ||||||||||||||
|
a
b |
c
e |
f
g |
h2
h1 |
h
i |
k
m |
o
p |
q
j |
t
r |
n
s |
u
w |
x
d |
y①
l2 |
l3
l1 |
l
t①1 | |
|
GPZH120MD-Ⅰ |
489
63 |
219
207 |
131
63 |
178
126 |
63
50 |
50
100 |
35
6-φ12 |
17
52 |
28.3
8 |
130
120 |
146
80 |
86
25 |
50
59 |
60
190 |
160
28 |
|
GPZH180MD-Ⅰ | |||||||||||||||
|
GPZH250MD-Ⅰ |
538
71 |
242
225 |
144
71 |
208
147 |
76
55 |
55
110 |
35
6-φ12 |
19
65 |
33.3
8 |
145
120 |
165
100 |
102
30 |
60
64 |
65
200 |
170
33 |
|
GPZH370MD-Ⅰ | |||||||||||||||
|
GPZH550MD-Ⅰ |
617
80 |
282
255 |
168
80 |
231
163 |
83
65 |
65
130 |
35
6-φ14 |
17
66.5 |
43.3
12 |
165
160 |
200
100 |
112
40 |
80
75 |
76
225 |
190
43 |
|
GPZH750MD-Ⅰ | |||||||||||||||
|
GPZH1100MD-Ⅰ |
619
80 |
282
257 |
195
160 | ||||||||||||
|
GPZH1500MD-Ⅰ |
644
80 |
282
282 | |||||||||||||