QQ:47447450

|
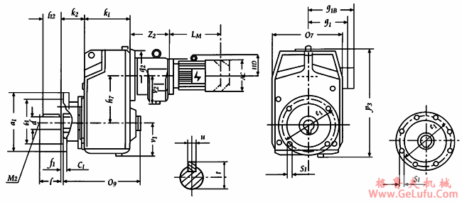
机座号 |
a1
b |
c1
e1 |
h1
f1 |
O7 |
O9 |
P3 |
s1
v1 |
d
|
l
l12 |
k1
k2 |
v2
z2 |
t
u |
M2 |
|
YCPJ160SF+VU2 |
250
180 |
15
215 |
160
4 |
212 |
205 |
351 |
(4孔)14
101 |
40k6
|
80
70 |
139
48 |
85
152 |
43
12 |
M10 |
|
YCPJ208F+VU8 |
250
180 |
15
215 |
208
4 |
260 |
250 |
442 |
(4孔)14
124 |
50k6
|
100
80
|
162
61 |
118
176 |
53.5
14 |
M12 |
|
YCPJ255F+VU8 |
350
250 |
20
300 |
255
5 |
315 |
270 |
540 |
(4孔)18
151 |
60m6
|
120
110 |
184
65 |
118
176 |
64
18 |
M12 |
|
YCPJ290F+VU8 |
450
350 |
22
400 |
290
5 |
380 |
345 |
628 |
18
182 |
70m6
|
140
125 |
265
85 |
118
176 |
74.5
20 |
M12 |