微信:grove_company

|
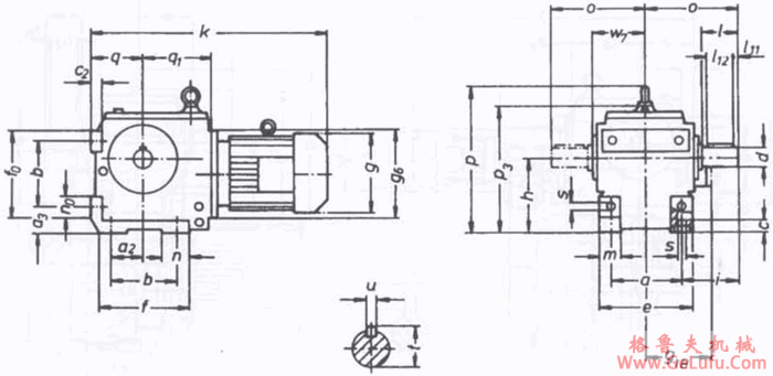
型号 |
a |
a2
a3 |
b |
c
c2 |
e
f
f0 |
g |
g1B |
g6
h |
i |
k |
m
n
n0 |
o
p
p3 |
q
q1 |
s
w7 |
D
l |
l11
l12 |
t
u | |
|
SWD225 |
Y80 |
200 |
92
82 |
180 |
34
30 |
250
260
235 |
175 |
150 |
250
225-0.5 |
155 |
630 |
55
80
55 |
255
434
372 |
150
195 |
22
130 |
60
120 |
10
100 |
64
18 |
|
Y90 |
212 |
160 |
667 | |||||||||||||||
|
Y100 |
180 |
696 | ||||||||||||||||
|
Y112M |
275 |
210 |
716 | |||||||||||||||
|
Y132S |
771 | |||||||||||||||||
|
Y132M |
335 |
265 |
811 | |||||||||||||||
|
Y160M |
870 | |||||||||||||||||
|
Y160L |
335 |
265 |
915 | |||||||||||||||
|
SWD280 |
Y80 |
250 |
115
90 |
235 |
40
35 |
300
320
300 |
175 |
150 |
300
280-1 |
170 |
705 |
65
90
65 |
295
529
458 |
180
240 |
26
150 |
70
140 |
15
110 |
74.5
20 |
|
Y90 |
212 |
160 |
742 | |||||||||||||||
|
Y100 |
180 |
771 | ||||||||||||||||
|
Y112M |
275 |
210 |
791 | |||||||||||||||
|
Y132S |
846 | |||||||||||||||||
|
Y132M |
335 |
265 |
886 | |||||||||||||||
|
Y160M |
945 | |||||||||||||||||
|
Y160L |
380 |
285 |
990 | |||||||||||||||
|
Y180 |
1050 | |||||||||||||||||