WX:grove_company
gelufu.com.cn
|
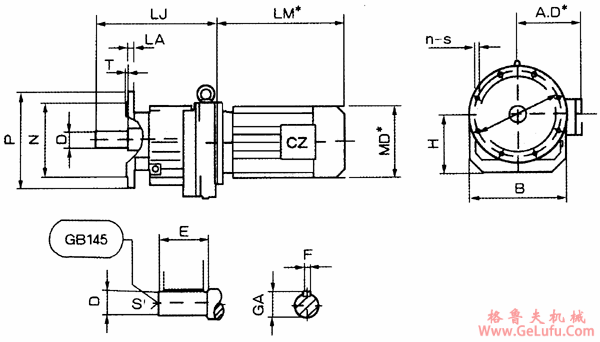
减速器
机座号 |
安装尺寸 |
外形尺寸 | ||||||||||||||
|
D |
E |
F |
N |
M |
P |
R |
T |
n |
S |
S′ |
LA |
GA |
H |
LJ |
B | |
|
CZR17F |
20K6 |
40 |
6 |
80 |
100 |
120 |
0 |
3 |
4 |
6.5 |
M6 |
8 |
22.5 |
76 |
215 |
130 |
|
95 |
115 |
140 |
8.5 |
9 | ||||||||||||
|
CZR27F |
25K6 |
50 |
8 |
80 |
100 |
120 |
0 |
3 |
4 |
6.5 |
M10 |
8 |
28 |
92 |
200 |
145 |
|
95 |
115 |
140 |
8.5 |
9 | ||||||||||||
|
110 |
130 |
160 |
3.5 |
10 | ||||||||||||
|
CZR37F |
25K6 |
50 |
8 |
80 |
100 |
120 |
0 |
3 |
4 |
6.5 |
M10 |
8 |
28 |
95 |
210 |
165 |
|
110 |
130 |
160 |
3.5 |
9 |
10 | |||||||||||
|
130 |
165 |
200 |
11 |
12 | ||||||||||||
|
CZR47F |
30K6 |
60 |
8 |
95 |
115 |
140 |
0 |
3 |
4 |
9 |
M10 |
10 |
33 |
120 |
240 |
180 |
|
110 |
130 |
160 |
3.5 |
9 |
10 | |||||||||||
|
130 |
165 |
200 |
11 |
12 | ||||||||||||
|
CZR57F |
35K6 |
70 |
10 |
110 |
130 |
160 |
0 |
3.5 |
4 |
9 |
M12 |
10 |
38 |
121 |
260 |
202 |
|
130 |
165 |
200 |
11 |
12 | ||||||||||||
|
180 |
215 |
250 |
4 |
13.5 |
15 | |||||||||||
|
CZR67F |
35K6 |
70 |
10 |
130 |
165 |
200 |
0 |
3.5 |
4 |
11 |
M16 |
12 |
38 |
135 |
280 |
215 |
|
180 |
215 |
250 |
4 |
13.5 |
15 | |||||||||||
|
CZR77F |
40K6 |
80 |
12 |
180 |
215 |
250 |
0 |
4 |
4 |
13.5 |
M16 |
15 |
43 |
145 |
300 |
240 |
|
230 |
265 |
300 |
18.5 | |||||||||||||
|
CZR87F |
50K6 |
100 |
14 |
230 |
265 |
300 |
0 |
4 |
4 |
13.5 |
M16 |
16 |
53.5 |
185 |
380 |
300 |
|
250 |
300 |
350 |
5 |
17.5 |
18 | |||||||||||
|
CZR97F |
60m6 |
120 |
18 |
250 |
300 |
350 |
0 |
5 |
4 |
17.5 |
M20 |
18 |
64 |
230 |
440 |
350 |
|
350 |
400 |
450 |
12 | |||||||||||||
|
CZR107F |
70m6 |
140 |
20 |
250 |
300 |
350 |
0 |
5 |
4 |
17.5 |
M20 |
20 |
74.5 |
260 |
500 |
410 |
|
350 |
400 |
450 |
20 | |||||||||||||
|
CZR137F |
90m6 |
170 |
25 |
350 |
400 |
450 |
0 |
5 |
8 |
17.5 |
M24 |
22 |
95 |
320 |
590 |
460 |
|
450 |
400 |
550 |
25 | |||||||||||||
|
CZR147F |
110m6 |
210 |
28 |
350 |
400 |
450 |
0 |
5 |
8 |
17.5 |
M24 |
22 |
116 |
365 |
700 |
550 |
|
450 |
500 |
550 |
25 | |||||||||||||
|
CZR167F |
120m6 |
210 |
32 |
450 |
500 |
550 |
0 |
5 |
8 |
17.5 |
M24 |
25 |
127 |
440 |
800 |
680 |
|
550 |
600 |
660 |
6 |
22 |
28 | |||||||||||