格鲁夫齿轮箱

|
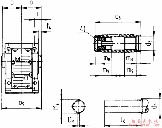
型号 |
1) |
d8 |
d9 |
f4 |
i |
lk |
m8 |
m9 |
o |
o8 |
o9 |
DM |
Me |
4) |
|
SKDV112Y |
6×23×26×6 |
37 |
42 |
2.5 |
15 |
115 |
18 |
32 |
75 |
150 |
152 |
4.0 |
38.92-0.03 |
M12×30 |
|
SKDV140Y |
6×26×30×6 |
47 |
52 |
3.5 |
20 |
130 |
25 |
42 |
90 |
180 |
180 |
4.0 |
48.85-0.03 |
M16×50 |
|
SKDV180Y |
8×46×50×9 |
55 |
62 |
4 |
22.5 |
160 |
23 |
52 |
105 |
210 |
210 |
4.0 |
54.13-0.03 |
M16×50 |
|
SKDV212Y |
8×56×62×10 |
72 |
82 |
4 |
30 |
180 |
25 |
62 |
120 |
240 |
240 |
4.0 |
68.96-0.04 |
M20×60 |
|
SKDV265Y |
8×62×68×10 |
72 |
90 |
4 |
30 |
240 |
25 |
72 |
150 |
300 |
300 |
4.0 |
74.15-0.04 |
M20×60 |
|
SKDV315Y |
10×82×88×12 |
90 |
105 |
2.5 |
40 |
290 |
26 |
89 |
175 |
350 |
351 |
6.0 |
90.99-0.04 |
M20×60 |