手机:13331225020

|
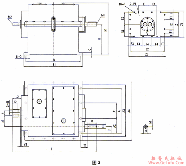
型号 |
安装尺寸 |
外形尺寸 | |||||||||||||||||||
|
H
(H11) |
a |
a1 |
A |
A1 |
A2 |
B |
C |
Q |
L1 |
L2 |
T |
T1 |
V2 |
A3 |
A4 |
B1 |
H1 |
V(f7) |
Z1 |
Z3 | |
|
PJT52/63 |
350 |
52 |
125 |
490 |
170 |
160 |
600 |
25 |
24 |
68 |
110 |
945 |
82.5 |
12 |
560 |
610 |
650 |
600 |
160 |
320 |
400 |
|
PJT60/72 |
390 |
60 |
140 |
540 |
180 |
180 |
675 |
30 |
26 |
70 |
106 |
1035 |
87.5 |
12 |
610 |
660 |
725 |
680 |
180 |
340 |
460 |
|
PJT78/92 |
510 |
78 |
224 |
800 |
270 |
265 |
810 |
40 |
26 |
134 |
125 |
1210 |
90 |
20 |
880 |
960 |
860 |
900 |
240 |
380 |
540 |
|
型号 |
安装尺寸 |
外形尺寸 | ||||||||||||||||||
|
d1(m6) |
L1 |
t1 |
b1 |
M1 |
d2(GB114-87) |
l1 |
M2 |
P |
P1 |
E |
E1 |
E2 |
F |
F1 |
F2 |
F3 |
F4 |
Z |
Z2 | |
|
PJT52/63 |
42 |
110 |
45 |
12 |
M10 |
2-8×36×40×7 |
55 |
M5 |
M16 |
12 |
119 |
61 |
140 |
30 |
55 |
110 |
50 |
90 |
280 |
370 |
|
PJT60/72 |
48 |
110 |
51.5 |
14 |
M10 |
2-8×36×40×7 |
55 |
M5 |
M16 |
12 |
142 |
78 |
154 |
34 |
60 |
120 |
54 |
110 |
308 |
438 |
|
PJT78/92 |
60 |
140 |
64 |
18 |
M12 |
2-8×52×60×10 |
80 |
M10 |
M20 |
16 |
180 |
82 |
170 |
30 |
70 |
140 |
60 |
120 |
340 |
480 |