您好,欢迎进入格鲁夫机械设备制造有限公司官网!
减速机|丝杆升降机|减速电机|行业专用减速机|减速机配件|减速机厂|丝杆升降机厂|转向器厂

联系我们

邮箱:china@gelufu.com
电话:0312-6784766
在线咨询

齿轮减速机

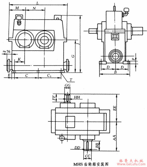
65MHS、75MHS、85MHS、95MHS、105MHS、115MHS、125MHS、135MHS、145MHS、齿轮箱安装尺寸

发布日期:2023-12-28 18:47 浏览次数:

65MHS、75MHS、85MHS、95MHS、105MHS、115MHS、125MHS、135MHS、145MHS、齿轮箱安装尺寸(图1)

mail:china@gelufu.com

MHS型齿轮箱安装尺寸 格鲁夫

65MHS、75MHS、85MHS、95MHS、105MHS、115MHS、125MHS、135MHS、145MHS、齿轮箱安装尺寸(图2)

电话:0312-6784766

MHS齿轮箱安装尺寸 (mm)
型号
B
C
C1
D
E
G
J
K
L
M
N
P
T
65MHS
75MHS
85MHS
95MHS
105MHS
115MHS
125MHS
135MHS
145MHS
340
370
400
460
510
540
640
680
710
345
420
515
610
720
830
475
530
585
475
530
585
145
160
175
200
225
240
280
300
315
50
50
50
50
50
50
50
50
50
360
390
435
500
540
585
640
700
755
580
635
715
830
910
995
1115
1215
1310
62.5
82.5
102.5
127.5
152.5
177.5
202.5
227.5
252.5
520
595
690
815
925
1035
1185
1295
1405
150
170
190
230
255
280
320
345
370
160
190
230
265
310
355
405
450
495
25
25
25
32
32
32
38
38
38
(4)φ24
(4)φ24
(4)φ24
(4)φ32
(4)φ32
(4)φ32
(6)φ35
(6)φ35
(6)φ35

Copyright © 2023-2025 格鲁夫 版权所有 备案号:冀ICP备19023093号-2

电子营业执照图标 电子营业执照
选择语言
Hello,欢迎来咨询~