邮箱:china@gelufu.com
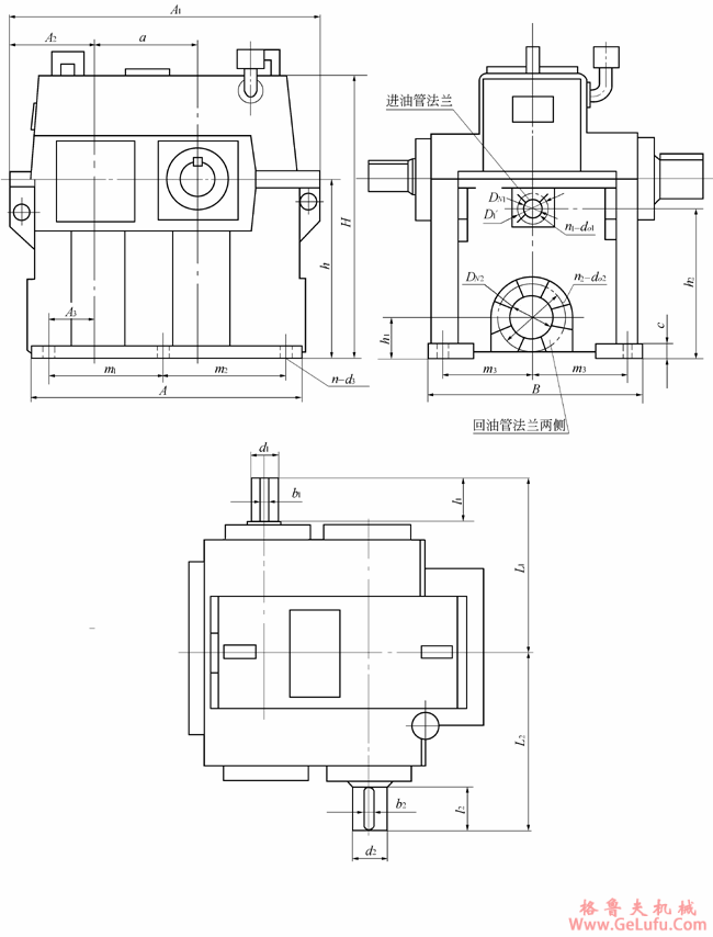
GS450~GS670齿轮箱的外开及结构尺寸 gelufu
QQ:47447450
|
规格 |
a |
A |
A1 |
A2 |
A3 |
H |
m1 |
m2 |
h |
h1 |
h2 |
c |
i≥1.00~5.51 | ||||||
|
B |
m3 |
d2 |
l2 |
b2 |
L2 |
重量/kg | |||||||||||||
|
450 |
450 |
1145 |
1358 |
370 |
210 |
1120 |
430 |
585 |
685 |
160 |
555 |
45 |
900 |
400 |
150 |
200 |
36 |
715 |
3500 |
|
500 |
500 |
1260 |
1472 |
395 |
220 |
1230 |
520 |
585 |
760 |
160 |
630 |
45 |
940 |
420 |
170 |
240 |
40 |
770 |
4400 |
|
530 |
530 |
1380 |
1560 |
415 |
250 |
1330 |
585 |
630 |
815 |
195 |
675 |
45 |
1020 |
460 |
180 |
240 |
45 |
815 |
5100 |
|
560 |
560 |
1465 |
1632 |
435 |
268 |
1389 |
629 |
664 |
845 |
195 |
705 |
45 |
1045 |
465 |
200 |
280 |
45 |
870 |
5700 |
|
600 |
600 |
1520 |
1794 |
490 |
280 |
1430 |
660 |
690 |
865 |
195 |
720 |
50 |
1070 |
475 |
200 |
280 |
45 |
870 |
6400 |
|
630 |
630 |
1640 |
1855 |
515 |
300 |
1510 |
730 |
745 |
900 |
195 |
760 |
50 |
1070 |
475 |
200 |
280 |
45 |
870 |
7100 |
|
670 |
670 |
1730 |
1950 |
520 |
320 |
1580 |
784 |
784 |
915 |
195 |
780 |
50 |
1070 |
475 |
200 |
280 |
45 |
870 |
7700 |
|
规格 |
i>5.51~7.00 |
进油管法兰 |
回油管法兰 |
地脚螺栓孔
n―d3 | ||||||||||||
|
B |
m3 |
d2 |
l2 |
b2 |
L2 |
重量/kg |
DN1 |
D1 |
D1′ |
n1 ―d01 |
DN2 |
D2 |
D2′ |
n2―d02 | ||
|
450 |
775 |
335 |
130 |
200 |
32 |
650 |
3300 |
50 |
140 |
110 |
4―13 |
150 |
265 |
225 |
8―18 |
6―42 |
|
500 |
815 |
355 |
130 |
200 |
32 |
670 |
4100 |
50 |
140 |
110 |
4―13 |
150 |
265 |
225 |
8―18 |
6―42 |
|
530 |
875 |
390 |
150 |
200 |
36 |
710 |
5000 |
80 |
190 |
150 |
4―17 |
250 |
375 |
335 |
12―18 |
6―42 |
|
560 |
915 |
400 |
150 |
200 |
36 |
710 |
5700 |
80 |
190 |
150 |
4―17 |
250 |
375 |
335 |
12―18 |
6―42 |
|
600 |
940 |
415 |
150 |
200 |
36 |
725 |
6300 |
80 |
190 |
150 |
4―17 |
250 |
375 |
335 |
12―18 |
6―48 |
|
630 |
965 |
425 |
170 |
240 |
40 |
785 |
7000 |
80 |
190 |
150 |
4―17 |
250 |
375 |
335 |
12―18 |
6―48 |
|
670 |
990 |
435 |
170 |
240 |
40 |
785 |
7600 |
80 |
190 |
150 |
4―17 |
250 |
375 |
335 |
12―18 |
6―48 |